
18121388846
cnklfm@163.com
15706269064
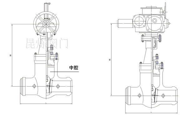
959210378Q61N高壓對焊球閥主要用于石油,天然氣的長距離管線輸送和城市煤氣管道系統;適用于Class 150~600Lb,工作溫度<150℃的長輸管線和一般工業管線,耐惡劣環境性等的設計均已進行考慮,適用于水、油品、蒸汽等介質。
①閥門中腔停滯的壓力異常超過彈簧的預緊力時,閥座后退脫離球體,達到自動泄壓,卸壓后閥座自動復位;
②當萬一發生火災或由于異常升溫使閥座密封圈燒損或軟化時,在彈簧和介質壓力作用下,使支撐圈球面部位和球體形成金屬對金屬接觸,達到暫時密封作用,阻止了火災進一步擴大,符合API6FA的規定;
③填料壓蓋部位密封采用PTFR填料和0形密封圈雙重密封圈,適用于氣體介質,填料裝在填料盤內,可采用摩擦系統低的新型SF型自潤滑滑動軸襯,減低操作力矩。
| 設計 | GB12237、API6D |
| 結構長度 | GB12221、ANSIB16.10 |
| 法蘭連接 | JB/T79、GB9112-9131ANSIB16.25 |
| 壓力溫度等級 | ANSIB16.34E101 |
| 試驗與檢驗 | API598E101 |
| 閥體、閥蓋 | 球、桿 | 密封 | 閥座 |
| A105 | 2Cr13 | 柔性石墨 | Nylon PTFE PPL |
| 1Cr18Ni9Ti | 1Cr18Ni9Ti | ||
| SS304 | SS304 | ||
| SS316 | SS316 |
| 產品型號 | 公稱通徑DN | PN16.0/32.0MPa | ||
| L | H | W | ||
| Q61F-320 Q61N-320 |
10 | 150 | 58 | 220 |
| 15 | 170 | 62 | 220 | |
| 20 | 191 | 75 | 250 | |
| 25 | 205 | 80 | 250 | |
| 32 | 230 | 96 | 300 | |
| 40 | 260 | 111 | 400 | |
| 50 | 330 | 128 | 400 | |
| 65 | 360 | 180 | 500 | |
| 80 | 380 | 200 | 600 | |
| 100 | 430 | 245 | 800 | |
獲取Q61N-高壓對焊球閥報價或訂購產品時請提供以下參數:
執行標準:國標GB,日標JIS,美標ANSI,德標DIN,并支持非標訂制;
公稱通徑(DN),或以“寸”為尺寸單位,如:DN100,4寸(4");
公稱壓力(MPa),或以“Lb”,“K”,“pa”,“kpa”,“bar”,“psi”,為壓力單位,如:1.6MPa,150LB,10K;其它壓力單位將換算成MPa進行計算。
連接形式:法蘭,對夾,焊接(對焊,承插焊),螺紋(G螺紋,NPT螺紋,RC螺紋...),卡箍,卡套;
使用介質:水,弱腐蝕性介質,強腐蝕性介質,蒸汽,油品,可燃氣體,固液共存流體,等等,粘稠介質需提供粘度;
使用溫度:低溫,常溫,中溫,高溫,需提供實際使用溫度值;
閥體材質:鑄鐵,鑄鋼(20#或稱WCB),鍛鋼,不銹鋼(304/304L/316/316L),雙相不銹鋼,等等;
密封材料:橡膠,聚四氟乙烯,陶瓷,PPL等,硬密封(閥體材料密封,合金鋼,硬質合金等);
驅動方式:手柄,蝸輪,氣動,氣動+手動,(選擇氣動驅動需提供氣源壓力,單/雙作用,附件要求...),電動,電動+手動,(選擇電動驅動需提供電壓,電裝防護/防爆要求...),等等;
閥門Kv/Cv值:若對流量有要求,需提出;
以上為常規選型,提供相關參數若符合常規產品即可獲取對應產品報價,非標訂制(非常規尺寸/閥體材質/密封材質/使用介質/溫度等)需由我司具體確認價格及貨期。
若有產品試驗、檢驗標準及其他要求需在獲取報價/訂貨時提出;
若由客戶提供閥門類型和型號時(非標準型號),客戶應正確說明其型號的含義和要求,在供需雙方理解相同的條件下簽訂合同;
產品質量要求、質量標準、供方對質量負責的條件:按有關質量標準執行;
報價確認:我司提供報價清單及標準說明至客戶確認,在雙方確認后再擬定合同;
Q61N-高壓對焊球閥使用的場合重要或環境比較復雜時,請您盡量提供設計圖紙和詳細參數,由我們幫您確認。
上海昆煉閥門制造有限公司
滬公網安備 SITEMAP