
18121388846
cnklfm@163.com
15706269064
959210378| 公稱壓力 PN/MPa |
試驗壓力/MPa | ||
| 殼體強度試驗 | 上密封試驗 | 密封試驗 | |
| 2.5 | 3.8 | 2.8 | 2.8 |
| 4.0 | 6.0 | 4.4 | 4.4 |
| 6.4 | 9.6 | 70 | 7.0 |
| 10.0 | 150 | 11.0 | 11.0 |
| 產品類型 | 適用介質 | 適用溫度/℃ |
| NKZ61H NKZ64H H-C型 NKZ964H H-C型 NKZ961H |
水、蒸汽、空氣 | ≤425 |
| NKZ61H NKZ64H Y-I型 NKZ964H Y-I型 NKZ961H |
水、蒸汽、空氣 | ≤550 |
| 零件名稱 | 閥體、閥蓋 | 閥桿 | 閘板 | 密封面 | 閥桿螺母 | 填料 | 緊固件 |
| NKZ61H NKZ64H H-C型 NKZ964H H-C型 NKZ961H |
WCB | 2Crl3 | 25 | H:合金鋼 | 鋁青銅 | 膨脹復合石墨 | 碳鋼 |
| NKZ61H NKZ64H Y-I型 NKZ964H Y-I型 NKZ961H |
鉻鉬鋼 | 20CrlMo1VA | 鉻鉬鋼 | Y:硬質合金 |
鉻鉬鋼 |

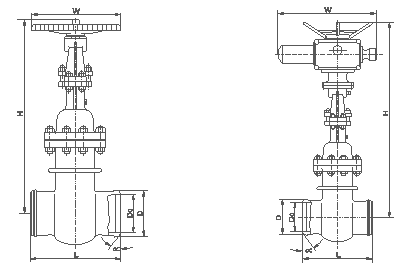
| 公稱通徑 DN/mm |
公稱壓力 PN/MPa |
主要外形尺寸和連接尺寸/mm | |||||
| L | H | D | D0 | ∝ | W | ||
| 50 | 2.5 | 250 | 345 | 64 | 49 | 37o30' | 250 |
| 65 | 270 | 395 | 82 | 66 | 37o30' | 250 | |
| 80 | 280 | 425 | 95 | 78 | 37o30' | 300 | |
| 100 | 300 | 51O | 117 | 100 | 37o30' | 300 | |
| 125 | 325 | 570 | 144 | 125 | 37o30' | 350 | |
| 150 | 350 | 725 | 172 | 151 | 37o30' | 350 | |
| 200 | 400 | 820 | 223 | 201 | 37o30' | 400 | |
| 250 | 450 | 890 | 278 | 253 | 37o30' | 450 | |
| 300 | 500 | 1070 | 330 | 303 | 37o30' | 550 | |
| 350 | 550 | 1320 | 382 | 351 | 37o30' | 650 | |
| 400 | 600 | 1450 | 432 | 398 | 37o30' | 750 | |
| 450 | 650 | 1560 | 484 | 450 | 37o30' | 750 | |
| 500 | 700 | 1720 | 535 | 498 | 37o30' | 850 | |
| 600 | 809 | 1880 | 638 | 600 | 37o30' | 900 | |
| 700 | 900 | 2083 | 738 | 700 | 37o30' | 950 | |
| 800 | 1000 | 2590 | 840 | 800 | 37o30' | 1000 | |
| 50 | 4.0 | 250 | 345 | 64 | 48 | 37o30' | 300 |
| 65 | 270 | 395 | 82 | 66 | 37o30' | 300 | |
| 80 | 280 | 425 | 95 | 78 | 37o30' | 350 | |
| 100 | 300 | 510 | 117 | 100 | 37o30' | 350 | |
| 125 | 325 | 570 | 144 | 125 | 37o30' | 400 | |
| 150 | 350 | 725 | 172 | 151 | 37o30' | 400 | |
| 200 | 400 | 820 | 223 | 199 | 37o30' | 450 | |
| 250 | 450 | 890 | 278 | 251 | 37o30' | 550 | |
| 300 | 500 | 1070 | 330 | 301 | 37o30' | 650 | |
| 350 | 550 | 1320 | 382 | 349 | 37o30' | 750 | |
| 400 | 600 | 1450 | 432 | 396 | 37o30' | 850 | |
| 50 | 6.4 | 250 | 350 | 64 | 48 | 37o30' | 300 |
| 65 | 280 | 405 | 82 | 65 | 37o30' | 300 | |
| 80 | 310 | 435 | 95 | 76 | 37o30' | 350 | |
| 100 | 350 | 515 | 117 | 98 | 37o30' | 400 | |
| 125 | 400 | 580 | 150 | 128 | 37o30' | 400 | |
| 150 | 450 | 735 | 172 | 149 | 37o30' | 450 | |
| 200 | 550 | 835 | 223 | 197 | 37o30' | 550 | |
| 250 | 650 | 905 | 278 | 245 | 37o30' | 650 | |
| 300 | 750 | 1080 | 330 | 293 | 37o30' | 750 | |
| 350 | 850 | 1340 | 382 | 341 | 37o30' | 800 | |
| 400 | 950 | 1460 | 432 | 386 | 37o30' | 900 | |
| 50 | 10.0 | 250 | 350 | 64 | 48 | 37o30' | 300 |
| 65 | 280 | 405 | 82 | 63 | 37o30' | 300 | |
| 80 | 310 | 435 | 95 | 74 | 37o30' | 350 | |
| 100 | 350 | 515 | 117 | 97 | 37o30' | 400 | |
| 125 | 400 | 580 | 150 | 124 | 37o30' | 400 | |
| 150 | 450 | 735 | 172 | 144 | 37o30' | 450 | |
| 200 | 550 | 835 | 223 | 189 | 37o30' | 550 | |
| 250 | 650 | 905 | 278 | 235 | 37o30' | 650 | |
| 300 | 750 | 1080 | 330 | 281 | 37o30' | 750 | |
| 350 | 850 | 1340 | 382 | 333 | 37o30' | 850 | |
| 400 | 950 | 1460 | 432 | 376 | 37o30' | 950 | |
注:PN2.5(25)型閥門允許作為PN1.0(10)、PN1.6(16)壓力級選用
| 公稱通徑 DN/mm |
公稱壓力 PN/MPa |
主要外形尺寸和連接尺寸/mm | |||||
| L | H | D | D0 | ∝ | W | ||
| 50 | 2.5 | 250 | 618 | 64 | 49 | 37o30' | 562 |
| 65 | 270 | 670 | 82 | 66 | 37o30' | 562 | |
| 80 | 280 | 700 | 95 | 78 | 37o30' | 562 | |
| 100 | 300 | 785 | 117 | 100 | 37o30' | 607 | |
| 125 | 325 | 845 | 144 | 125 | 37o30' | 607 | |
| 150 | 350 | 990 | 172 | 151 | 37o30' | 607 | |
| 200 | 400 | 1080 | 223 | 201 | 37o30' | 607 | |
| 250 | 450 | 1150 | 278 | 253 | 37o30' | 607 | |
| 300 | 500 | 1415 | 330 | 303 | 37o30' | 755 | |
| 350 | 550 | 1665 | 382 | 351 | 37o30' | 755 | |
| 400 | 600 | 1815 | 432 | 398 | 37o30' | 825 | |
| 450 | 650 | 1920 | 484 | 450 | 37o30' | 825 | |
| 500 | 700 | 2080 | 535 | 498 | 37o30' | 825 | |
| 600 | 800 | 2380 | 638 | 600 | 37o30' | 925 | |
| 50 | 4.0 | 250 | 618 | 64 | 49 | 37o30' | 562 |
| 65 | 270 | 670 | 82 | 66 | 37o30' | 562 | |
| 80 | 280 | 700 | 95 | 78 | 37o30' | 607 | |
| 100 | 300 | 785 | 117 | 100 | 37o30' | 607 | |
| 125 | 325 | 845 | 144 | 125 | 37o30' | 607 | |
| 150 | 350 | 990 | 172 | 151 | 37o30' | 607 | |
| 200 | 400 | 1080 | 223 | 199 | 37o30' | 607 | |
| 250 | 450 | 1150 | 278 | 251 | 37o30' | 755 | |
| 300 | 500 | 1415 | 330 | 301 | 37o30' | 755 | |
| 350 | 550 | 1685 | 382 | 349 | 37o30' | 825 | |
| 400 | 600 | 1815 | 432 | 396 | 37o30' | 825 | |
| 50 | 6.4 | 250 | 625 | 64 | 49 | 37o30' | 562 |
| 65 | 280 | 693 | 82 | 66 | 37o30' | 562 | |
| 80 | 310 | 712 | 95 | 76 | 37o30' | 607 | |
| 100 | 350 | 790 | 117 | 98 | 37o30' | 607 | |
| 125 | 400 | 855 | 150 | 128 | 37o30' | 607 | |
| 150 | 450 | 1000 | 172 | 149 | 37o30' | 607 | |
| 200 | 550 | 1185 | 223 | 197 | 37o30' | 755 | |
| 250 | 650 | 1255 | 278 | 245 | 37o30' | 755 | |
| 300 | 750 | 1445 | 330 | 293 | 37o30' | 825 | |
| 350 | 850 | 1715 | 382 | 341 | 37o30' | 825 | |
| 400 | 950 | 1985 | 432 | 386 | 37o30' | 925 | |
| 50 | 10.0 | 250 | 625 | 64 | 49 | 37o30' | 562 |
| 65 | 280 | 693 | 82 | 66 | 37o30' | 562 | |
| 80 | 310 | 712 | 95 | 74 | 37o30' | 607 | |
| 100 | 350 | 790 | 117 | 97 | 37o30' | 607 | |
| 125 | 400 | 855 | 150 | 124 | 37o30' | 607 | |
| 150 | 450 | 1000 | 172 | 144 | 37o30' | 755 | |
| 200 | 550 | 1185 | 223 | 189 | 37o30' | 755 | |
| 250 | 650 | 1255 | 278 | 235 | 37o30' | 825 | |
| 300 | 750 | 1445 | 330 | 281 | 37o30' | 825 | |
| 350 | 850 | 1715 | 382 | 333 | 37o30' | 925 | |
| 400 | 950 | 1985 | 432 | 376 | 37o30' | 925 | |
獲取DKZ61H-真空焊接閘閥報價或訂購產品時請提供以下參數:
執行標準:國標GB,日標JIS,美標ANSI,德標DIN,并支持非標訂制;
公稱通徑(DN),或以“寸”為尺寸單位,如:DN100,4寸(4");
公稱壓力(MPa),或以“Lb”,“K”,“pa”,“kpa”,“bar”,“psi”,為壓力單位,如:1.6MPa,150LB,10K;其它壓力單位將換算成MPa進行計算。
連接形式:法蘭,對夾,焊接(對焊,承插焊),螺紋(G螺紋,NPT螺紋,RC螺紋...),卡箍,卡套;
使用介質:水,弱腐蝕性介質,強腐蝕性介質,蒸汽,油品,可燃氣體,固液共存流體,等等,粘稠介質需提供粘度;
使用溫度:低溫,常溫,中溫,高溫,需提供實際使用溫度值;
閥體材質:鑄鐵,鑄鋼(20#或稱WCB),鍛鋼,不銹鋼(304/304L/316/316L),雙相不銹鋼,等等;
密封材料:橡膠,聚四氟乙烯,陶瓷,PPL等,硬密封(閥體材料密封,合金鋼,硬質合金等);
驅動方式:手柄,蝸輪,氣動,氣動+手動,(選擇氣動驅動需提供氣源壓力,單/雙作用,附件要求...),電動,電動+手動,(選擇電動驅動需提供電壓,電裝防護/防爆要求...),等等;
閥門Kv/Cv值:若對流量有要求,需提出;
以上為常規選型,提供相關參數若符合常規產品即可獲取對應產品報價,非標訂制(非常規尺寸/閥體材質/密封材質/使用介質/溫度等)需由我司具體確認價格及貨期。
若有產品試驗、檢驗標準及其他要求需在獲取報價/訂貨時提出;
若由客戶提供閥門類型和型號時(非標準型號),客戶應正確說明其型號的含義和要求,在供需雙方理解相同的條件下簽訂合同;
產品質量要求、質量標準、供方對質量負責的條件:按有關質量標準執行;
報價確認:我司提供報價清單及標準說明至客戶確認,在雙方確認后再擬定合同;
DKZ61H-真空焊接閘閥使用的場合重要或環境比較復雜時,請您盡量提供設計圖紙和詳細參數,由我們幫您確認。


上海昆煉閥門制造有限公司
滬公網安備 SITEMAP