
18121388846
cnklfm@163.com
15706269064
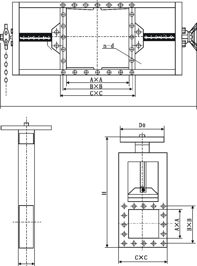
959210378LMD方閘門/螺旋閘門應用于給排水工程,用以截斷渠道內的水流,其工作介質為常溫下的原水、清水、污水。1.形式:不銹鋼電動渠道閘門。2.結構:本設備主要由閘門(門框、閘板)、密封條、吊塊螺母等部件組成。密封面上鑲有P型橡膠條,符合了密封性和耐久性,久用磨損后,并可通過楔形壓塊高度來使正常工作。具有結構合理、封閉性好,安裝、調整、使用、維護方便、性能好。

| 類別 | A×A | B×B | C×C | L | H | D0 | n-d |
| 單向 | 220×200 | 256×256 | 296×296 | 100 | 820 | 300 | 8-φ12 |
| 250×250 | 306×306 | 346×346 | 100 | 930 | 340 | 8-φ14 | |
| 300×300 | 356×356 | 396×396 | 100 | 1050 | 380 | 8-φ14 | |
| 400×400 | 456×456 | 496×496 | 100 | 1140 | 445 | 12-φ14 | |
| 450×450 | 510×510 | 556×556 | 120 | 1450 | 530 | 12-φ18 | |
| 500×500 | 560×560 | 606×606 | 120 | 1610 | 580 | 16-φ18 | |
| 雙向 | 600×600 | 660×660 | 706×706 | 120 | 1830 | 450 | 16-φ18 |
| 700×700 | 770×770 | 820×820 | 140 | 2130 | 450 | 20-φ18 | |
| 800×800 | 870×870 | 920×920 | 140 | 2440 | 450 | 20-φ18 | |
| 900×900 | 974×974 | 1030×1030 | 160 | 2660 | 450 | 24-φ23 | |
| 1000×1000 | 1074×1074 | 1130×113 | 160 | 2870 | 450 | 24-φ23 | |
| 說明 | LMD-單向 | Ⅰ-手輪 | 鏈條節數M=0.105×-113(×是絲桿中心離地面高度)距地面小于1.7米用于手輪大于1.7米用鏈輪 | ||||
| LMD-雙向 | Ⅱ-鏈條 | ||||||
注:可來圖來樣定作非標的螺旋閘門
獲取LMD-方閘門/螺旋閘門報價或訂購產品時請提供以下參數:
執行標準:國標GB,日標JIS,美標ANSI,德標DIN,并支持非標訂制;
公稱通徑(DN),或以“寸”為尺寸單位,如:DN100,4寸(4");
公稱壓力(MPa),或以“Lb”,“K”,“pa”,“kpa”,“bar”,“psi”,為壓力單位,如:1.6MPa,150LB,10K;其它壓力單位將換算成MPa進行計算。
連接形式:法蘭,對夾,焊接(對焊,承插焊),螺紋(G螺紋,NPT螺紋,RC螺紋...),卡箍,卡套;
使用介質:水,弱腐蝕性介質,強腐蝕性介質,蒸汽,油品,可燃氣體,固液共存流體,等等,粘稠介質需提供粘度;
使用溫度:低溫,常溫,中溫,高溫,需提供實際使用溫度值;
閥體材質:鑄鐵,鑄鋼(20#或稱WCB),鍛鋼,不銹鋼(304/304L/316/316L),雙相不銹鋼,等等;
密封材料:橡膠,聚四氟乙烯,陶瓷,PPL等,硬密封(閥體材料密封,合金鋼,硬質合金等);
驅動方式:手柄,蝸輪,氣動,氣動+手動,(選擇氣動驅動需提供氣源壓力,單/雙作用,附件要求...),電動,電動+手動,(選擇電動驅動需提供電壓,電裝防護/防爆要求...),等等;
閥門Kv/Cv值:若對流量有要求,需提出;
以上為常規選型,提供相關參數若符合常規產品即可獲取對應產品報價,非標訂制(非常規尺寸/閥體材質/密封材質/使用介質/溫度等)需由我司具體確認價格及貨期。
若有產品試驗、檢驗標準及其他要求需在獲取報價/訂貨時提出;
若由客戶提供閥門類型和型號時(非標準型號),客戶應正確說明其型號的含義和要求,在供需雙方理解相同的條件下簽訂合同;
產品質量要求、質量標準、供方對質量負責的條件:按有關質量標準執行;
報價確認:我司提供報價清單及標準說明至客戶確認,在雙方確認后再擬定合同;
LMD-方閘門/螺旋閘門使用的場合重要或環境比較復雜時,請您盡量提供設計圖紙和詳細參數,由我們幫您確認。
上海昆煉閥門制造有限公司
滬公網安備 SITEMAP