
18121388846
cnklfm@163.com
15706269064
959210378應用范圍∶船舶、機械、科研、石化、電力、化學、輕工、燃氣管網、工業窯爐、管道介質自動化控制等領域
產品特點∶耐溫設計、外觀好看、活塞結構、性能穩定、線圈不易燒毀
通徑范圍:DN1~DN500
控制方式∶常開、常閉、自保持式
電源電壓∶DC12~220V、AC24~380V
閥體材質∶鑄鋼、不銹鋼
適用介質∶水、蒸汽、油等
壓力范圍∶0~10MPa
溫度范圍∶+250、+350、+450、+500、+600、+650
防護性能∶防塵、防水、防爆、根據工況選擇
接線方式∶接線座式、引線式、插頭式
連接方式∶法蘭、焊接、內螺紋(外螺紋和其它接口可定做或加轉接頭)
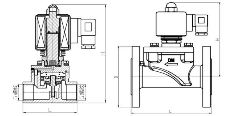
注:電磁閥的外形尺寸(除高度外)與常規的管接及法蘭尺寸一致

| 公稱通徑 | 內螺紋 | 法蘭(單位:mm) | ||||||
| G螺紋 | L | H | L | H | D | K | n-d | |
| DN0.5 | G1/8 G1/4 |
40 | 80(根據使用溫度加高) | |||||
| DN3 | 40 | 95(根據使用溫度加高) | ||||||
| DN5 | 55 | 110(根據使用溫度加高) | ||||||
| DN8 | 60 | 130(根據使用溫度加高) | ||||||
| DN10 | 60 | 130(根據使用溫度加高) | ||||||
| DN15 | G1/2 | 70 | 150(根據使用溫度加高) | 100 | 150(根據使用溫度加高) | φ95 | φ65 | 4-φ14 |
| DN20 | G3/4 | 85 | 160(根據使用溫度加高) | 110 | 155(根據使用溫度加高) | φ105 | φ75 | 4-φ14 |
| DN25 | G1 | 95 | 165(根據使用溫度加高) | 125 | 165(根據使用溫度加高) | φ115 | φ85 | 4-φ14 |
| DN32 | G1-1/4 | 115 | 180(根據使用溫度加高) | 140 | 170(根據使用溫度加高) | φ135 | φ100 | 4-φ18 |
| DN40 | G1-1/2 | 130 | 190(根據使用溫度加高) | 150 | 180(根據使用溫度加高) | φ145 | φ110 | 4-φ18 |
| DN50 | G2 | 145 | 205(根據使用溫度加高) | 165 | 185(根據使用溫度加高) | φ160 | φ125 | 4-φ18 |
| DN65 | 200 | 250(根據使用溫度加高) | φ180 | φ145 | 4-φ18 | |||
| DN80 | 240 | 270(根據使用溫度加高) | φ190 | φ160 | 8-φ18 | |||
| DN100 | 280 | 305(根據使用溫度加高) | φ215 | φ180 | 8-φ18 | |||
| DN125 | 310 | 305(根據使用溫度加高) | φ245 | φ210 | 8-φ18 | |||
| DN150 | 460 | 360(根據使用溫度加高) | φ280 | φ240 | 8-φ23 | |||
| DN200 | 600 | 450(根據使用溫度加高) | φ335 | φ295 | 12-φ23 | |||
| DN250 | 650 | φ405 | φ355 | 12-φ26 | ||||
| DN300 | 750 | φ460 | φ410 | 12-φ26 | ||||
| DN350 | 850 | φ520 | φ470 | 16-φ26 | ||||
| DN400 | 950 | φ580 | φ525 | 16-φ30 | ||||
| DN500 | 1150 | φ715 | φ650 | 20-φ33 | ||||
| 其它規格可訂做,法蘭執行標準按國內:GB/T9119-2000,GB/T9113-2000 | ||||||||
獲取SOL-V-EPCFHHRG-CRAIG法蘭高溫電磁閥報價或訂購產品時請提供以下參數:
執行標準:國標GB,日標JIS,美標ANSI,德標DIN,并支持非標訂制;
公稱通徑(DN),或以“寸”為尺寸單位,如:DN100,4寸(4");
公稱壓力(MPa),或以“Lb”,“K”,“pa”,“kpa”,“bar”,“psi”,為壓力單位,如:1.6MPa,150LB,10K;其它壓力單位將換算成MPa進行計算。
連接形式:法蘭,對夾,焊接(對焊,承插焊),螺紋(G螺紋,NPT螺紋,RC螺紋...),卡箍,卡套;
使用介質:水,弱腐蝕性介質,強腐蝕性介質,蒸汽,油品,可燃氣體,固液共存流體,等等,粘稠介質需提供粘度;
使用溫度:低溫,常溫,中溫,高溫,需提供實際使用溫度值;
閥體材質:鑄鐵,鑄鋼(20#或稱WCB),鍛鋼,不銹鋼(304/304L/316/316L),雙相不銹鋼,等等;
密封材料:橡膠,聚四氟乙烯,陶瓷,PPL等,硬密封(閥體材料密封,合金鋼,硬質合金等);
驅動方式:手柄,蝸輪,氣動,氣動+手動,(選擇氣動驅動需提供氣源壓力,單/雙作用,附件要求...),電動,電動+手動,(選擇電動驅動需提供電壓,電裝防護/防爆要求...),等等;
閥門Kv/Cv值:若對流量有要求,需提出;
以上為常規選型,提供相關參數若符合常規產品即可獲取對應產品報價,非標訂制(非常規尺寸/閥體材質/密封材質/使用介質/溫度等)需由我司具體確認價格及貨期。
若有產品試驗、檢驗標準及其他要求需在獲取報價/訂貨時提出;
若由客戶提供閥門類型和型號時(非標準型號),客戶應正確說明其型號的含義和要求,在供需雙方理解相同的條件下簽訂合同;
產品質量要求、質量標準、供方對質量負責的條件:按有關質量標準執行;
報價確認:我司提供報價清單及標準說明至客戶確認,在雙方確認后再擬定合同;
SOL-V-EPCFHHRG-CRAIG法蘭高溫電磁閥使用的場合重要或環境比較復雜時,請您盡量提供設計圖紙和詳細參數,由我們幫您確認。







上海昆煉閥門制造有限公司
滬公網安備 SITEMAP