
18121388846
cnklfm@163.com
15706269064
959210378DQ61F焊接式低溫球閥分為低溫浮動球和低溫固定球兩類,用于截斷或接通管路中的低溫介質,介質低溫度不得低于-196度。低溫閥門用途:乙烯,液化天然氣等化工裝置上,天然氣儲罐,、石油、化工尾氣分離設備、液氧、液氮、液氬、二氧化碳低溫貯槽及槽車、變壓吸附制氧等。

公稱壓力:1.6-16MPa
公稱通徑:15mm~200mm
適用介質:LO2、LN2、LAr、LNG、LC2H4等
適用溫度:-196~+80℃
連接方式:對焊、承插焊
介質流向:由閥門的左側向右流
閥體、閥蓋、閥桿:不銹鋼
球體:不銹鋼實心球
填料:PTFE
密封圈:PTFE或PCTFE
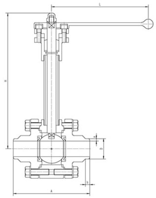
| 產品型號 | DQ61F-16P | |||||
| 通徑DN(mm) | 尺寸(mm) | |||||
| A | b | D | a | H | L | |
| 15 | 140 | 6 | 18 | 2 | 207 | 140 |
| 20 | 152 | 6 | 25 | 2.5 | 239 | 160 |
| 25 | 165 | 6 | 32 | 2.5 | 254 | 180 |
| 32 | 178 | 6 | 38 | 3 | 280 | 200 |
| 40 | 190 | 7 | 48 | 3.5 | 292 | 200 |
| 50 | 216 | 8 | 57 | 3.5 | 322 | 250 |
| 65 | 241 | 10 | 76 | 4 | 354 | 320 |
| 80 | 283 | 10 | 89 | 4 | 375 | 320 |
| 100 | 305 | 12 | 108 | 4 | 420 | 360 |
| 125 | 381 | 12 | 133 | 4.5 | 452 | 500 |
| 150 | 403 | 12 | 159 | 4.5 | 491 | 700 |
| 200 | 419 | 16 | 219 | 4.5 | 544 | 900 |
獲取DQ61F-焊接式低溫球閥報價或訂購產品時請提供以下參數:
執行標準:國標GB,日標JIS,美標ANSI,德標DIN,并支持非標訂制;
公稱通徑(DN),或以“寸”為尺寸單位,如:DN100,4寸(4");
公稱壓力(MPa),或以“Lb”,“K”,“pa”,“kpa”,“bar”,“psi”,為壓力單位,如:1.6MPa,150LB,10K;其它壓力單位將換算成MPa進行計算。
連接形式:法蘭,對夾,焊接(對焊,承插焊),螺紋(G螺紋,NPT螺紋,RC螺紋...),卡箍,卡套;
使用介質:水,弱腐蝕性介質,強腐蝕性介質,蒸汽,油品,可燃氣體,固液共存流體,等等,粘稠介質需提供粘度;
使用溫度:低溫,常溫,中溫,高溫,需提供實際使用溫度值;
閥體材質:鑄鐵,鑄鋼(20#或稱WCB),鍛鋼,不銹鋼(304/304L/316/316L),雙相不銹鋼,等等;
密封材料:橡膠,聚四氟乙烯,陶瓷,PPL等,硬密封(閥體材料密封,合金鋼,硬質合金等);
驅動方式:手柄,蝸輪,氣動,氣動+手動,(選擇氣動驅動需提供氣源壓力,單/雙作用,附件要求...),電動,電動+手動,(選擇電動驅動需提供電壓,電裝防護/防爆要求...),等等;
閥門Kv/Cv值:若對流量有要求,需提出;
以上為常規選型,提供相關參數若符合常規產品即可獲取對應產品報價,非標訂制(非常規尺寸/閥體材質/密封材質/使用介質/溫度等)需由我司具體確認價格及貨期。
若有產品試驗、檢驗標準及其他要求需在獲取報價/訂貨時提出;
若由客戶提供閥門類型和型號時(非標準型號),客戶應正確說明其型號的含義和要求,在供需雙方理解相同的條件下簽訂合同;
產品質量要求、質量標準、供方對質量負責的條件:按有關質量標準執行;
報價確認:我司提供報價清單及標準說明至客戶確認,在雙方確認后再擬定合同;
DQ61F-焊接式低溫球閥使用的場合重要或環境比較復雜時,請您盡量提供設計圖紙和詳細參數,由我們幫您確認。
上海昆煉閥門制造有限公司
滬公網安備 SITEMAP